Search Listings In:

Mortgage Calculator

Close btn
YEARS
{{mortgageIntervals[mortgage.interval].label}}
House Price: {{ mortgage.housePrice | currency }}
Down Payment: {{ mortgage.downPayment | currency }}
Mortgage Amount: {{ (mortgage.housePrice - mortgage.downPayment) | currency }}
{{ mortgageIntervals[mortgage.interval].label }} Payment: {{ mortgage.intervalPayment | currency }}
Total # of Payments: {{ mortgage.totalPayments }}
Total Paid: {{ mortgage.totalPaid | currency }}
Total Interest Paid: {{ (mortgage.totalPaid - mortgage.housePrice) | currency }}

NEED HELP?
Contact Us or Email Ken

To view this property email Ken a personal message

Close btn

Thank you for your interest in this property.
Before booking a showing please answer the following:

Are you working with an agent?

Yes No

Please contact your agent. This property is not listed with Ken Wyder.

Back

In order to assist you please answer the following questions:

    YesNo
    YesNo
    YesNo





    Success. Your message has been sent.

    Schedule a visit | Ken Wyder

    Close btn

    Thank you for your interest in this property.
    Before booking a showing please answer the following:

    Do you already know or have you met a real estate agent you may work with at some point in your search?

    Yes No

    You have indicated you may already have an agent to work with. Please contact your agent to make showing arrangements as this property is not necessarily a listing of Ken Wyder. This site contains all properties listed in your search area including other agents listings. Thank you and all the best in your search.

    Regulations enacted in June of 2018 require real estate agents in B.C. to respond to all public inquiries with a review of your agency options. If you are unsure of your existing agency relationship please feel free to email Ken directly at [email protected] and arrange a time to discuss your situation.

    Back

    You have indicated you do not have an existing real estate agency relationship. Please note regulations enacted in June of 2018 require real estate agents in B.C. to respond to all public inquiries with a review of your agency options even if you wish to be unrepresented. This policy change was instituted to guard public privacy and advance consumer protection. Ken or one of his associates will be happy to arrange a showing for you and provide further details regarding your agency options.


      X Clear All


      Success. Your message has been sent.


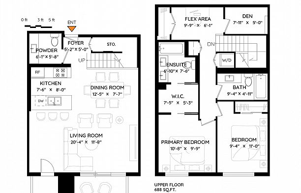
      2063 W 10th Avenue, Vancouver V6J 0H1

      Kitsilano 2+Den Concrete Townhouse w/AC. 1,254 on 2 floors w/extra high 11’ ceilings, accommodates house size furniture, full size appliances, gas cooking, ample storage & comfortable bedroom size. Heating, cooling, gas & gym included in maintenance fees. Quiet home facing Arbutus Greenway. Steps to the future skytrain, on bike routes, minutes to Kits Beach & all the amenities that makes this incredible community. Lord Tennyson & Montessori Daycare beside building. OPEN SAT MAR 28, 3.30 - 4.30 pm.

      General Information

      • Property Type: Residential Attached
      • Year Built: (Age: 9)
      • Lot Size Area: 0 sq.ft.
      • Maintenance Fees: $792.45
      • Bedrooms: 2
      • Bathrooms: 2 full, 1 half
      • Total Area: 1254 sq.ft.
      • Basement:
      Features: Washer/Dryer, Dishwasher, Refrigerator, Stove

      Internet Marketing & Web Design By: Guaranteed SEO